top of page
空家物件の売却
空き家を相続し、売却する事になった経緯については、
こちらに詳細を掲載しています。
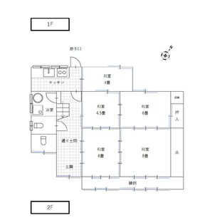
実際に売却をした空き家物件です。
(場所は旧八東町小別府地域)

空き家バンクの現実
空家に関しての実態ですが、実際に売却までの道のりを体験した当事者の目線で言うと。
…売れないわけではありません。
ただ、簡単には売れません。
正直に言うと、役所の空き家バンクに登録しただけでは
問い合わせはあります。
しかし、問い合わせと下見だけで実際の購入には至りません。
そして、不動産業者も町から離れた年代物の空き家と聞いただけで相手もしてくれません。
その実態についても詳細はこちらに掲載しています。
bottom of page




